Verhuurd: Frederika-Gracht 34, Kerkrade
Rustig en centraal gelegen en ruime hoekwoning (drive-in) met 3 slaapkamers, ruime bijkeuken, tuin op het zuidwesten en inpandige garage. De woning is volledig gerenoveerd en gemoderniseerd (energielabel C). Nabij scholen, winkels, openbaar vervoer en uitvalswegen.
- Woonoppervlakte: 124 m2
- Perceeloppervlakte: 178 m2
- Bruto inhoud: 360 m3
- Kamers: 5
Overzicht
- Aanbod: verhuurd
- Soort woonhuis: eengezinswoning
- Type woonhuis: hoekwoning
- Bouwvorm: bestaande bouw
- Bouwjaar: 1975
- Woonoppervlakte: 124 m2
- Perceeloppervlakte: 178 m2
- Bruto inhoud: 360 m3
- Woonlagen: 2
- Kamers: 5
- Slaapkamers: 3
- Badkamers: 1
- Toiletten: 2
- Tuin: ja
- Garage: ja
- Gerenoveerd: ja
- Gemoderniseerd: ja
- Energielabel: C
Omschrijving
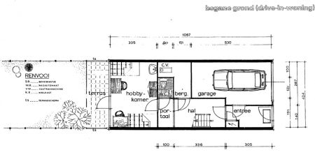
Begane grond:
Entree/ hal (ca. 4,25 m²) met tegelvloer, kruipruimte en meterkast (elektra dag- en nachttarief) leidt tot inpandige garage (ca. 14 m²) met wateraansluiting.
Trappenhuis (ca. 6,40 m²) leidt tot berging (ca. 4,35 m²) met cv-ketel (Nefit HR Ecomline/ eigendom), toilet (1/2 betegeld) met wc en fonteintje.
Bijkeuken (ca. 13,25 m²) met tegelvloer en keukenunit met wasbak en onderkasten biedt veel extra ruimte. Deze ruimte leidt tot tuin met terras (deur met kattenluik).
Open houten trap leidt tot de 1e verdieping.
1e verdieping:
Lichte woon- en eetkamer (ca. 32,75 m²) met laminaat vloer. Grote raampartij (met nieuwe dubbele beglazing) zorgt voor veel lichtinval.
Gezellige leefkeuken (ca. 13,25 m²) met apparatuur zoals, wasbak en diverse kasten, elektrische kookplaat, vaatwasser.
De keuken biedt een mooi uitzicht over tuin en het achter gelegen weiland.
De gesaneerde achterkant van de woning is voorzien van een zonnescreen.
Open houten trap leidt tot 2e verdieping.
2. verdieping:
Overloop (ca. 6,10 m² incl. trap) leidt tot drie slaapkamers en de moderne badkamer. Alle slaapkamers zijn voorzien van laminaatvloer.
Slaapkamer I (4,34 m x 3,05 m), slaapkamer II (4,15 m x 2,17 m), slaapkamer III (5,30 m x 2,10 m).
Licht betegelde badkamer (ca. 5,15 m²) met open douche, wastafel met spiegel en zwevend toilet.
Tuin en terras:
Rustig gelegen en onderhoudsvriendelijke tuin biedt door zuid-west-ligging een aangrenzend weiland veel zon en privacy.
Tuin is voorzien van twee terrassen waarvan een met markies, kleine wijver-partij, antike waterpomp en buitenverlichting.
Bovendien bereikt men de tuin via een aparte zijingang.
Kenmerken
Bouwjaar: 1975
Onderhoud: gerenoveerd en gemoderniseerd
Perceel oppervlakte: 178 m²
Gebruiksoppervlakte (garage): 14 m²
Woonoppervlakte: 124 m²
Inhoud: 360 m³
Ligging tuin: zuid-westen
Kozijnen: kunststoff
Ramen: dubbel glas
Aantal slaapkamers: 3
Verwarming: CV-Ketel/ Nefit HR Ecomline/ eigendom
Energielabel: categorie C
Aanvaarding: in overleg!
Belangrijke informatie:
Aan de inhoud van deze brochure kunnen geen rechten worden ontleend. Alle maten zijn circa maten. Voor de roerende goederen, wordt verwezen naar de roerende goederenlijst.
Situering
Op een rustige locatie aan de rand van de Kerkraadse wijk “De Gracht” is deze ruime drive-in-woning gelegen. Deze hoekwoning beschikt over drie slaapkamers, ruime keuken en bijkeuken, oftewel tuinkamer, een inpandige garage en een tuin op het het zuid-westen.
Plattegrond
Kaart
Toon locatie op Google Maps





